Områdets anvendelse
Områdets anvendelse fastlægges fortsat til offentlige formål, som uddannelsesinstitutioner.
Lokalplanen giver mulighed for opførsel af tilbygninger og nyt byggeri til undervisning - herunder klasserumsundervisning, idrætsfaciliteter, auditorier etc.
Fremtidigt byggeri
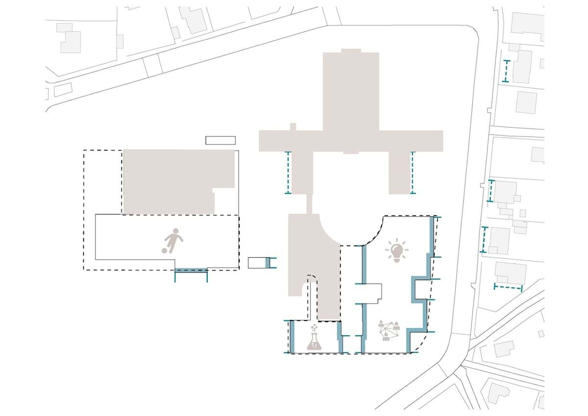
Det nye byggeri, herunder også tilbygninger til Sciencebygning og idrætshal, skal placeres indenfor byggefelterne der er vist på Kortbilag 3, Fremtidige forhold. Herved sikres en eksakt placering, der skaber en harmoni i anlæggets helhed. Det nye byggeri må højest opføres i 10 meters højde, og skal have facader i gule teglsten, som det fremherskende materiale.
Facadernes udtryk og formsprog skal være er i overensstemmelse med de viste illustrationer i lokalplanen.
Se i øvrigt bestemmelserne med tilhørende redegørelser i §§ 8 og 9.
Eksisterende byggeri
I lokalplanen er der detaljerede bevarende bestemmelser for den eksisterende hovedbygning, der skal sikre, at den i fremtiden bevarer sit ydre udtryk, trods eventuelle indvendige ombygninger.
Rektor- og pedelbolig må nedrives.
Ubebyggede arealer
De ubebyggede arealer kan fortsat anvendes til både ophold, idræt, færdsel og parkering.
Parkrummet på hjørnet af Lovbyvej og Studentervænget må ikke inddrages til bebyggelse, og udvalgte bevoksninger skal bevares. Hækken langs hele området skal bevares, hvor der ikke er indgange og overkørsler.
Beplantningen langs Schüttesvej skal bevares.
Den eksisterende læringssø bliver flyttet i forbindelse med planlægningen, og der stilles krav om at erstatningssøen er 1½ gange større end den nuværende og at der skal være en afstand mellem søen og bygningerne, som angivet på Kortbilag 3, Fremtidige forhold.
For at skabe de nødvendige arealer til gymnasiets parkeringsbehov for biler, disponeres der i planlægningen over en eksisterenede parkeringsplads, der ligger syd for området og der etableres nye pladser i det nordøstlige hjørne. Parkeringspladsen ligger i dag i en kommuneplanramme til rekreative formål. Der er derfor udarbejdet et kommuneplantillæg i forbindelse med planlægningen, der overfører det pågældende areal til offentlige formål.
Lokalplan 176 gælder i dag for det pågældende areal, se i øvrigt redegørelsen under fanen"Eksisterende lokalplaner".
Se i øvrigt lokalplanens "Illustrationsplan".



Visualiseringer af udvidelsen af Statsskolen



Visualiseringer af udvidelsen af Statsskolen



Konceptdiagrammer



Konceptdiagrammer
