Lokalplanen giver mulighed for etablering af en boligbebyggelse med op til 90 boliger i 4, 5 og 6 boligetager placeret på plinte med parkering. Lokalplanen sikrer at bebyggelsen indpasses visuelt og funktionelt som en del af den fremtidige Havneø, jfr lokalplanens afsnit Formål og indhold.
Området
Grundarealet - som er placeret på nordsiden af havneindløbet til Horsens og tæt på bymidten - afgrænses mod nord og øst af eksist. tilkørselsveje og mod syd af vand, havn og promenade for gående og cyklende. Området opdeles i tre grønne ”øer” adskilt af gangstier, som forbinder den eksist. Jens Hjernøes Vej mod nord med promenaden mod syd og med sigtelinjer fra nord mod syd til vand og havn. På hver af de grønne øer opbygges to hævede plinte og et nyt, varieret, grønt terræn, der dels skjuler bygningernes parkeringspladser og dels hæver bygningskroppenes slanke ”siloer” samt opholdsarealerne og de private uderum fra det omgivende terræn. Opholds- og uderummene mellem bygningerne ligger i læ for vinden og for lydpåvirkninger fra erhvervshavnen.
Hver enkelt ”ø” fremstår med begrønnet, naturpræget terræn med varieret hældning, og det kombineres med belægninger, beplantninger, inventar og belysninger som understøtter havnestemningen. Der anvendes derfor overvejende materialer, der er kendt i området, men med en bearbejdning, der viser at havnen og området, er en del af byen hvor mange mennesker og beboere færdes og opholder sig. Udformningen, indretningen af uderum og opholdsarealer, arkitektur og materialevalg, skal opfordre til både ophold, leg, aktiviteter og rekreation. Udearealerne skal fremstå som åbne og indbydende, således at den samlede bebyggelse inviterer til passage og ophold, bortset fra private arealer nærmest bygningerne.
3D model af bebyggelsen på grønt, bølget terræn, der skjuler parkeringsplinte
Parkering
Parkering for biler indrettes i plinten under hver bygning. Plinten vil være delvis skjult af et varieret terræn, der opbygges på hver af de tre øer. Da vejene i området benævnt Havneøen ikke påregnes hævet til en kote, der udelukker indtrængen af højvande, kan det blive nødvendigt at sikre parkeringspladserne ved lokale terrænhævninger eller skotter.
Parkering for cykler for beboerne indrettes i plinten og/eller i terræn eller i konstruktion.
Bygninger
På de tre grønne øer opføres seks bygninger, to på hver ø. Hver bygning er sammensat af 4-6 etages bygningskroppe, der indbyrdes forskydes og vinkles for at opnå gode bolig- og udsigtsforhold i lejlighederne. Områdets seks bygninger drejes endvidere indbyrdes for at skabe læ og støjdæmpning ift erhvervshavnen.
Da bygningerne vil syne som slanke, lyse siloer med en indbyrdes forskydning både vertikal og horisontalt vil bebyggelsen fremstå med stor variation, og der vil være lysindfald imellem bygningerne og mulighed for kik igennem bebyggelsen.
Hver etage består af tre lejligheder med fælles trappeadgang og elevator. Lejlighederne er i varieret størrelse. Boligplaner er planlagt og optimeret med disponering med åbne planløsninger hvor det tilstræbes placering af soverum mod nord og øst, således at evt. lydgener minimeres fra de eksist. havneaktiviteter.
Promenaden
Lokalplanen indeholder en strækning af en offentlig, bilfri promenade langs havnebassinet. Promenaden, som vil forbinde inderhavnen og lystbådehavnen, skal gøre adgangen til vandet nemmere og mere oplevelsesrig for byens borgere, og den vil kunne give nye muligheder, eksempelvis for at sejlere kan lægge til kaj. Mellem promenaden og bebyggelsen vil der kunne etableres et terrænspring, som giver mulighed for læfyldte opholdsarealer. Promenaden inden for lokalplanområdet udformes med rustikke materialer, belysning mv i sammenhæng med den øvrige del af de fremtidige promenader på Nordhavnen.
Skitse af bebyggelsen set fra promenaden. Der etableres opholdsmuligheder langs bebyggelsens kanter
Visualiseringer
Der er udarbejdet visualiseringer der viser bebyggelsen set fra byen (Havnetrekanten), adgangsvejene Frederik Winthers Vej og Jens Hjernøes Vej og fra Lystbådehavnen. Visualiseringerne viser bygningernes placering og volumener, men ikke bygningsdetaljer og materialer. Visualiseringerne viser at bebyggelsen vil fremtræde markant i den nuværende sammenhæng. På sigt forventes byggeriet at ville udgøre et naturligt element i en ny bydel. Bebyggelsen vil fremtræde som sammensat af flere bygningskroppe, der tillader lysindfaldfald og gennemkik.
Den påtænkte bebyggelse vil have overflader i lyse mursten med mindre partier af andre materialer.
Bebyggelsen set mod øst fra Havnetrekanten
Bebyggelsen set mod øst fra Jens Hjernøes Vej
Bebyggelsen set mod syd fra Frederik Winthers Vej
Bebyggelsens set mod vest fra Jens Hjernøes Vej
Bebyggelsen set mod vest fra lystbådehavnen.
Referencefotos af opholds- og færdselsarealer
Referencefotos, der viser mulige elementer i de grønne arealer: Klippede og uklippede græsser, urter, løvtræer, erosionssikrede skråninger der kan tilsås med græs, indrammede felter med fliser, bænke med læmuligheder i lys beton og træ samt udnyttelse af terrænet til trappeanlæg/siddetrin.
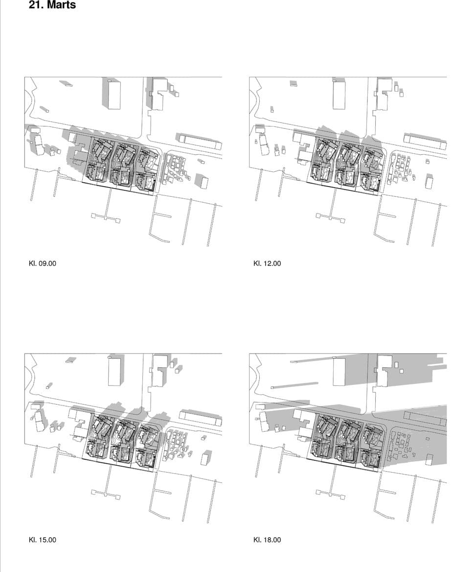
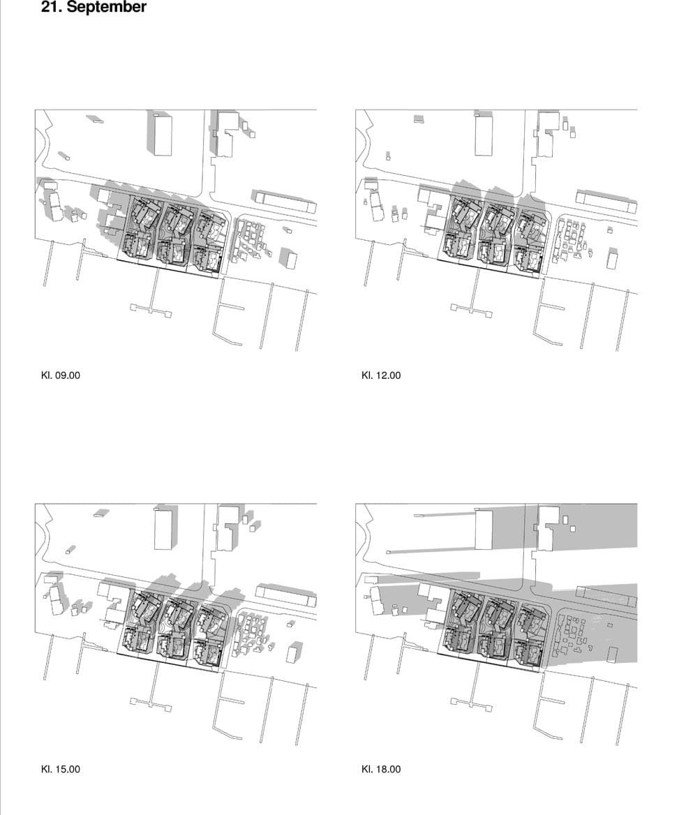
Skyggediagrammer.

















