Lokalplanområdet er omfattet af eksisterende lokalplaner nr. 11-2010 og delvist af 5-2010. Der er tidligere, i forbindelse med udarbejdelse af lokalplan 5-2011 udarbejdet en overordnet dispositionsplan for hele området mellem Rådvedvej, Gl. Kirkevej og Skanderborgvej, der dækker hele området indenfor såvel lokalplan 5-2010 og lokalplan 11-2010. Dispositionsplanen tog udgangspunkt i de landskabelige og topografiske forhold. Lokalplan 11-2010, som for en stor del afløses af nærværende lokalplan omfattede etape 2 af dispositionsplanen.
Lokalplan 11-2010
Lokalplanen er opdelt i 2 delområder - delområde 1, som udlægges med anvendelse til detailhandel og liberalt erhverv samt delområde 2, som udlægges med anvendelse til boliger. Boligbebyggelsen er fastlagt til etagebebyggelse i form af punkthuse. Byggeri i lokalplanområdet skal udføres i mørke jordfarver , af hensyn til den landskabelige helhed ved Lille- og Store Hansted Ådal. Placeringen af bebyggelsen tager udgangspunkt i områdets kuperede topografi. Bebyggelsen er udlagt som enkeltstående bygninger uden nogen form for overgangszone mellem bebyggelsen og de markerede private udearealer og græstæppet. Herved opnås en stærk forbindelse mellem bebyggelse og landskab.
Lokalplan 5-2010
Lokalplanen er opdelt i 3 delområder med anvendelser udlagt til boliger som tæt-lav, etagebebyggelse i form af punkthuse samt rekreativt område. Byggeri i lokalplanområdet skal udføres i mørke jordfarver , af hensyn til den landskabelige helhed ved Lille- og Store Hansted Ådal. Kun en lille del af delområde 1 berøres af nærværende lokalplan - et område, som ud over boliger, var fastlagt til fælles grønne arealer og regnvandsbassiner. Arealet omfattet af nærværende lokalplan 2016-18 fungerer i dag som fælles grønt areal for den opførte boligbebyggelse og skal fortsat med den ny lokalplan fungere som sådan. Derudover er der i området etableret et regnvandsbassin, som ligeledes forbliver.
En stor del af de eksisterende lokalplaners bestemmelser fasholdes og / eller omskrives. Der bygges i bevaringsværdigt landskab og dette ønskes fortsat med den ændrede bebyggelsesudformning i området respekteret, således at oplevelsen af det stærkt kuperede terræn forbliver. Der sker således primært en om-disponering af arealerne i delområde 2 fra etageboligbebyggelse i form af punkthuse til tæt-lav boliger i 2 etager. Bebyggelsesprocent og farve / materialevalg ændres ikke og det er altså fortsat intentionen, at den kuperede topografi bevares.
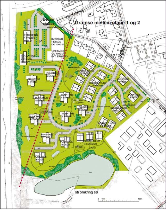
Overordnet dispositionsplan. Dispositionsplanen er fra lokalplan 5-2010. Den angivne grænse ml. delområde 1 og 2 er IKKE sammenfaldende med delområdeafgrænsningen for den ny lokalplan 2016-18.

