Eksisterende forhold
Denne lokalplan gælder for et område, der ligger i Horsens by i den sydlige bymidte. Lokalplanområdet er ca. 63 ha stort og beliggende på matrikel nr. 4ls, 15b, 15d, 15x, 15y, 15aa, 16, Dagnæs by, Tyrsted og 850d og 850e Horsens Markjorder og tangeres af vejene Rypevej og Bjerrevej mod vest og øst. Området afgrænses mod syd, nord og vest af boligområder i form af åben-lav og tæt-lavboligbebyggelse. Øst for Bjerrevej er der erhvervsbyggeri og mod nordøst er ligeledes en mindre del erhverv.Hovedparten af området, hvor den tidligere losseplads lå, fremstår i dag som indhegnet, ufremkommeligt tilgroet og forsømt. Tilkørsel til området sker fra øst via Høegh Guldbergsgade og Spedalsø til Bjerrevej. I forlængelse af Rypevej langs områdets vestlige afgræsning er en nyopført cykelbro over Dagnæs Bæk, som forbinder boligområdet med midtbyen. Tilkørsel til lokalplanområdet fra vest sker via Sønderbrogade, Spedalsø og Bjerrevej.
Området fremstår forholdsvist fladt og falder mod nord fra kote 3,5 i områdets sydlige grænse til kote 0,5 i Dagnæs Bæk.
Lokalplanens indhold
Lokalplanens formål er at planlægge for et oplevelsesrigt rekreativt parkområde, med et kuperet landskab, hvori der kan etableres forskellige opholds- og aktivitetsmuligheder samt en varieret beplantning. Med lokalplanen er det desuden hensigten at gøre området offentligt tilgængeligt med muligheder for udfoldelse og ophold i et anderledes byparkområde og derved skabe et ny rekreativt område for bydelens borgere.
Lokalplanens fastlægger principperne for omdannelsen af det ubebyggede areal, som er en tidligere losseplads kan omdannes til et rekreativt landskab i form af en offentlig park med et markant kuperet landskab. I området udlægges forskellige typer stier, der sikrer en gennemgående forbindelse gennem området samt tilgængeligheden mellem de forskellige aktivitets- og opholdsområder. Lokalplanen sikrer desuden, at aktivitetsområderne placeres i bakkelandskabet på steder, hvor der skabes særligt gode muligheder for leg og ophold. Udformningen af landskabet skal ske med udgangspunkt i illustrationsplanen for området, der viser, hvordan området sammen med en varieret beplantning kan gives en oplevelsesrig karakter.
Lokalplanen skaber desuden mulighed for etablering af et skybrudsmagasin gennem anvendelse af den gennemgående stiforbindelse som en vandvej for situationer med ekstremregn.
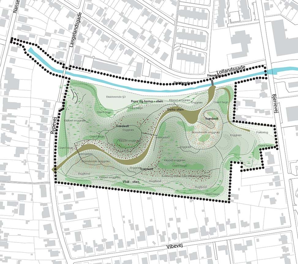
Terrænformer
Udformningen af områdets rekreative landskab består af et kuperet terræn, der kan etableres ved et jordpåfyld med ca. 161.000 m3. Terrænet udformes som et varieret landskab, i hvilket der der etableres to bakketoppe, der begge har toppunkt vest for lokalplanområdets midte. Den ene bakke kan etableres i op til 10 meters højde over det eksisterende terræn. Den anden har en bredere udformning og placeres med topkote i den sydvestlige del af området i op til 9 meters højde over eksisterende terræn. Der er i udformningen taget hensyn til, at der ikke opstår indkigs- og skyggegener for nabobebyggelserne. Disse kan ses i bilag under 'Kort/Skitser'.
Leg og aktiviteter
I området etableres to særlige områder til leg og aktivitet, hvor elementer til leg og læring koncentreres. Det er tanken, at landskabets terræn vil være med til at danne rammer for aktiverende funktioner, såsom tovbaner, rutsjebane og lignende. Funktionerne udføres i materialer med et naturmæssigt præg, således at de falder naturligt i med de landskabelige omgivelser. Der kan desuden placeres skilte, der kan guide én gennem området, aktivitetsredskaberne og opholdsmulighederne i området.
Bebyggelse og anlæg – omfang og udseende
I området kan der etableres lettere konstruktioner i form af shelters, madpakkeskur eller lign. primitive bygninger, dvs. at der for hver konstruktion skal være mulighed for luftgennemstrømning. De lette konstruktioner må ikke placeres højere end i kote 8, for at undgå indbliksgener i nabobebyggelserne. Der skal benyttes materialer som træ eller plademateriale, som harmonerer med landskabets karakter.
Beplantning
Der er udarbejdet en beplantningsplan for området, som bekriver principperne for, hvordan og med hvilke plantetyper området skal beplantes. Beplantningen består af hjemmehørende arter.
Projektområdets bunddække består primært af sået enggræs af forskellige typer, der egner sig til skråninger, skygge, tørt, vådt mv. Arealer med enggræs vil med fordel flere steder kunne henstå og over og få et mere vildt præg. Dette vil give et lavt plejeniveau og samtidigt skaber det fortættede og varierende beplantning, som det fx ses i dag omkring det eksisterende §3 moseområde i den nordlige del af lokalplanområdet.
På de forskellige aktivitetsområder i lokalplanområdet skal der som udgangspunkt anlægges klippet enggræs. Omkring lokalplanområdets kant og ved aktivitetsområderne etableres grønne hegn i varierende i højde og tæthed for at skærme mod naboarealerne.
På særlige steder, som fx ”Frugtlunden” ( jf. Kortbilag 4 Beplantningsplan) kan der etableres klynger af forskellige typer frugttræer og buske, som blomster hen over foråret og som kan plukkes i løbet af sommeren og efteråret og i det sene efterår og ind i vinteren tiltrække dyr og fugle, der kan spise de frugter og bær, der er i overskud.
Beplantningsplanen viser, at der særligt på områdets sydlige bakkeskråninger kan placeres buske og træer i høstfarver, som i sensommeren og efteråret kan få området til at stå flot for beboerne, der bor i det omkringliggende højere terræn og derfor har et bredt indsyn over det bakkede landskab.
Trafikale forhold - veje, stier og parkering
Der er adgang til lokalplanområdet fra Bjerrevej ind på et ankomst- og parkeringsområde, hvor der kan anlægges mindst 20 parkeringspladser på en fast, permeabel belægning som fx grus eller armeret græs. Derudover skal der findes steder i lokalplanområdet, hvor der kan etableres mindst 30 cykelparkeringspladser.
Der er fastlagt et overordnet princip for placering af de overordnede stiforbindelser gennem området og landskabet placeret med henblik på at besøgende skal opleve det kuperede landskab og have adgang til de forskellige aktivitetsområder.
Hovedstien løber diagonalt igennem området fra Rypevej i projektområdets sydvestlige hjørne til en mulig ny broforbindelse over Dagnæs Bæk i det nordøstlige hjørne. Fra hovedstier er desuden en forbindelse til parkeringsarealet.
Lokalplanen fastsætter også principperne for placeringen af to sekundære stier, syd og nord for hovedstien begge med indgang fra Rypevej. De sekundære stier skal have et mere naturmæssigt præg end hovedstien, og kan etableres som klippede græsstier eller med grus, mens hovedstien alene kan anlægges med en fast, permeabel belægning. I området kan desuden etableres mindre trampestier rundt i landskabet og mellem de forskellige aktivitetsområder, samt hængebroer, hvor terrænet tillader det.
Opsamling af regnvand ved skybrudshændelser
Stien a-b udformes for at sikre, at den kan fungere som volumen til forsinkelse af regnvand. Ved ekstremregn vil stiforbindelsen igennem området således ændre karakter, idet den varierer mellem at stå under vand eller at være en synlig grussti.
I forbindelse med stien skal landskabet udformes, så skabes et forsinkelsesbassin.
Visualiseringer af det fremtidige rekreative landskab
Illustrationsplan




