Det er lokalplanens bærende ide at skabe rammer for et attraktivt boligområde i forlængelse af de eksisterende bolig - og erhvervsområder, som grænser op mod det planlagte område ved Emil Møllers Gade. Det er intentionen at give området en imødekommende karakter med bebyggelse i et grønt område i bynære omgivelser. Det skal være et spændende og særligt sted at bo samt opholde sig i. Området skal give mulighed for at tiltrække såvel byens borgere som tilflyttere.
Områdets skabes med en grøn karakter
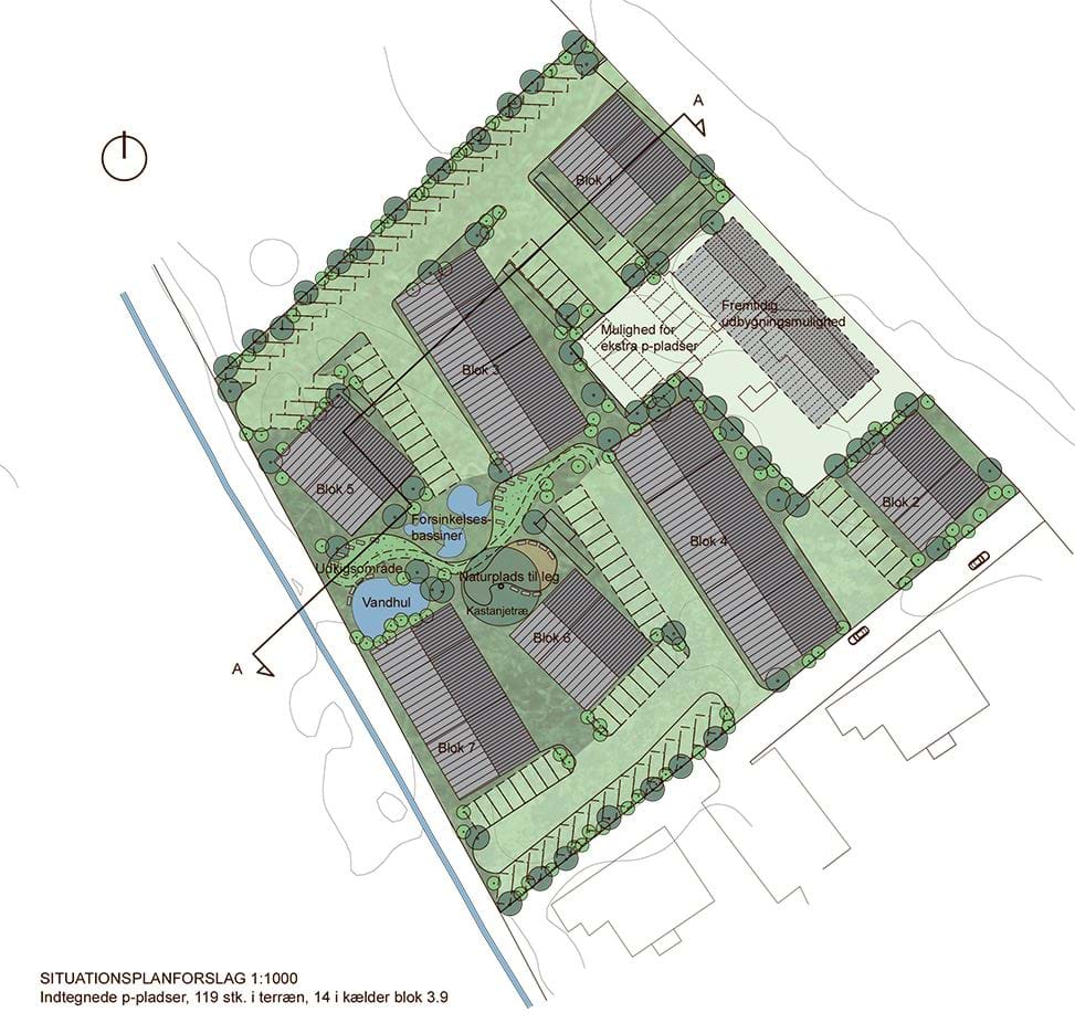
Lokalplanområdet begrønnes så meget som muligt - også parkeringspladserne, der primært placeres i terræn og etableres med græsarmering, som giver et grønt udtryk. Parkeringsarealerne fletter sig ind imellem den planlagte bebyggelse og langs skel. Dermed undgås store golde parkeringsområder på terrænet. Centralt på grunden skæres en grøn rekreativ kile ind, som rummer muligheder for uformelle mødesteder, ophold og leg. I det grønne uderum etableres flere mindre forsinkelsesbassiner som et rekreativt element i bebyggelsen. I tilknytning til dette rekreative areal er der i dag et ældre eksisterende Hestekastanjetræ, som bør bevares og således give karakter til et fællesmødested for områdets beboere.
Der er i forbindelse med lokalplanen indtænkt løsninger til håndtering af fremtidige store nedbørsmængder. Belægningen på parkeringsarealer og kørebaner bør primært udføres i permeable belægning som f.eks. græsarmering. Desuden skal det store grønne fællesareal og de mindre grønne lommer udformes, så de kan håndtere så meget regnvand som muligt på grunden. Nedsivning, fordampning samt regnvandsbede, tørvebede (med egnet beplantning) og andre former for overflade magasiner bør prioriteres højt. Som supplement hertil kan en del af regnvandet ledes til underjordiske faskiner og bassiner, hvis der er egnet områder set i forhold til grundvandet og jordbundsforholdene.
Varierende bebyggelse
Indenfor lokalplanområdet opføres bygningskroppe som stangbebyggelse i varierende udstrækning. Mod Emil Møllers Gade opføres bebyggelsen i 4 etager, bygningerne opføres (i en evt. første fase) på hver side af den eksisterende boligbebyggelse, Emil Møllers Gade 61, 63, 65A og 67. Det nye byggeri danner således facade mod gaden, samtidig med, at de på hensigtsmæssig vis møder Emil Møllers Gade i gadens bygningshøjde, der i dag varierer fra 3-5 etager. De øvrige bygninger indenfor det planlagte område stiger i højde, jo længere ind på området de ligger, til maksimalt 6 etager og falder igen i højden ud mod det åbne areal mod vest.
Udvikling af området 1. fase/etape
De højere bygninger møder skalamæssigt naboområdet mod syd, hvor der er opført etageejendomme på 5 etager, som svarer til højden på Bastian og Hede Nielsens bygningskompleks.
På illustrationsplanen ses det, hvordan bygningerne flettes og roteres mod hinanden, dermed skabes der spændende muligheder for udkig og lysindfald imellem bygningerne.
Bebyggelsens facader udføres i materialer, som skaber referencer til naturen, som f.eks. teglsten, natursten og træ i neddæmpede jordfarver eller træets naturlige farve. Facaderne opføres med dynamiske og varierende elementer, der er med til at give området særlige karakter og kendetegn. Bebyggelsens moderne og imødekommende udtryk vil skabe en nytidig stemning i vestbyens historiske struktur, de eksisterende bebyggelser og de smukkede fredede bygninger i nærområdet.
Forudsætning for lokalplanens realisering kræver nedrivning af eksisterende erhvervs- fabrik - og garagebebyggelse indenfor lokalplanområdet. Det planlagte giver desuden mulighed for, at nybyggeri indpasses i forhold til de eksisterende boligejendomme, disse ejendomme kan eventuelt indgå i den fremtidige udvikling af området.
Referencebilleder Zigzag arguitectura, boligbebyggelse i Spanien
Lokalplanen giver derfor mulighed for nedrivning af disse bevaringsværdi ejendomme Emil Møllers Gade 61, 63 og 65A (67 er ikke udpeget som bevaringsværdig).
Referencebilleder af boligbebyggelse med imødekommende, dynamiske og varierende facader. Facaderne skaber en særlig identitet til området. Området har desuden en landskabelig karakter i bynære omgivelser. Belægningsmønstre illustrerer en grøn karakter med et mix mellem sten, græsarmeringssten, bede og tæer.
Veje, stier og parkering
Der sikres vejadgange fra naboarealet mod syd, som er omfattet af lokalplan nr. 199, hvis bestemmelser beskriver vejadgangen via eksisterende boligvej. Desuden fastlægges vejadgang fra Emil Møllers Gade via nyetableret boligvej.
Der etableres en central belyst stiforbindelse i området, dermed forbindes Emil Møllers Gade (nærområdet) og lokalplanområdet med eventuelle fremtidige stiforbindelser langs det gamle banetracé til slagterigrunden og banegården. Stien skal fremstå imødekommende og være offentlig tilgængelig. Der skal desuden etableres flere uformelle stiforbindelser mellem bebyggelsen, som sikre et godt internt flow på kryds og tværs gennem området.
Parkeringsarealerne og vejene skal fremstå i belægningsmønster i asfalt, betonbelægning og græsarmeringssten. Græsarmeringsstenen bidrager til et grønt og imødekommende udtryk i området. Parkeringsarealerne omkranses af buske, bede og/eller opstammede træer.
Mulig udvikling af området 2. fase/etape
Illustration af det lokalplanlagte område, der viser en boligbebyggelse i et frodigt landskab med parkkarakter.





