Skovbyggelinje
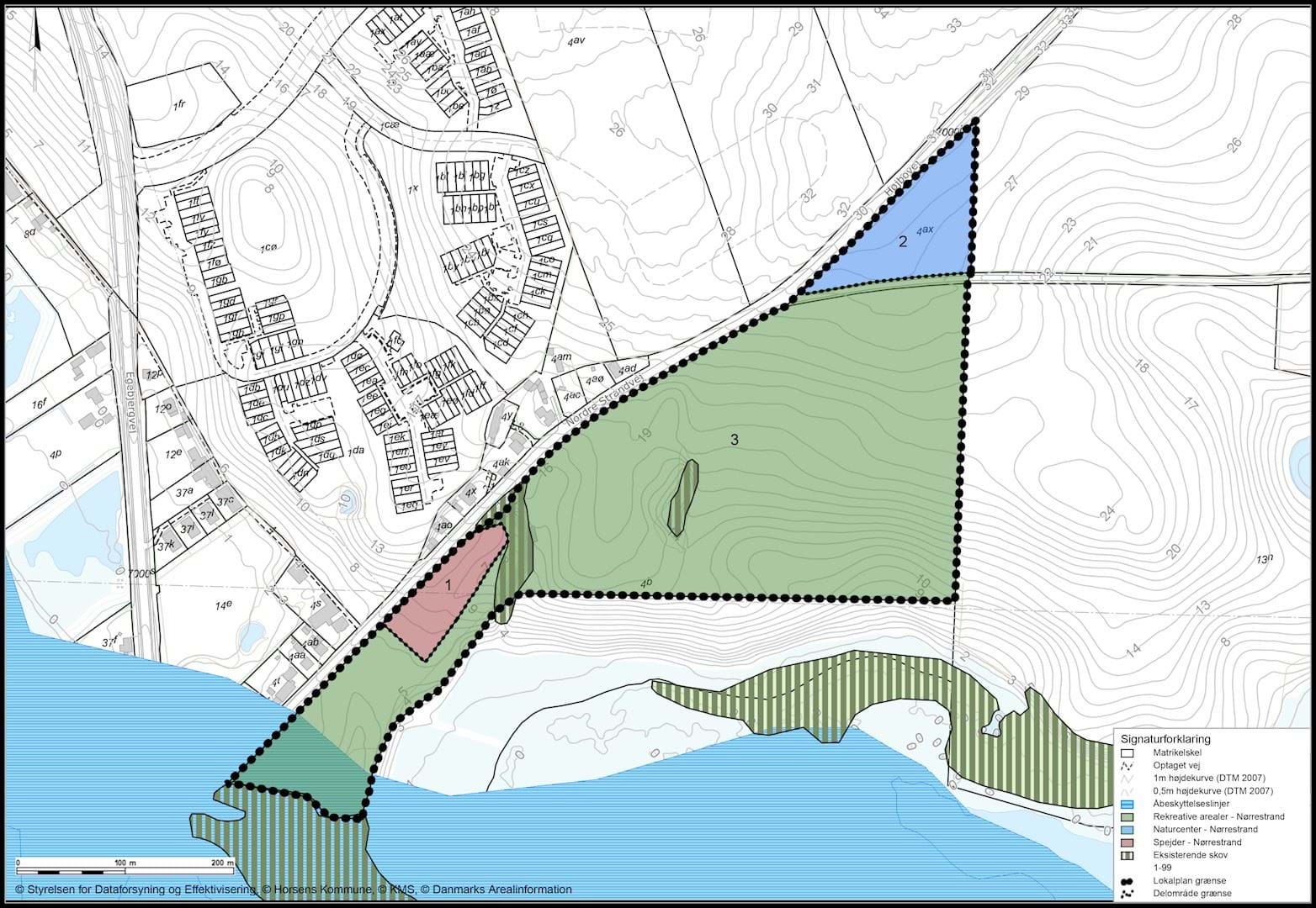
Der er en skovbyggelinje fra den sydvest for liggende skov, men dennes afkast rører ikke nogle byggefelter i lokalplanen.
Der er i dag ikke registreret nogen skovbyggelinje hvis 300 m afkast rammer byggefelter inden for lokalplanområdet. Efter kommunens erhvervelse af matr. 13n Handsted By, kommer der en skovbyggelinje fra den mod nordsiden af Nørrestrand liggende skov, idet skov som bliver kommunalt ejet blot skal være på ½ ha for at udløse en skovbyggelinje. Der er mere end 100 meter fra skoven til ny bebyggelse, og da der kun er tale om enkelte mulige byggesager inden for lokalplanområdet, vil det være Horsens Kommune som skal dispensere for skovbyggelinjen.
Realisering af lokalplanen forudsætter således, at Horsens Kommune dispenserer fra skovbyggelinjen.
Registreret og ikke registreret skovbyggelinje inden for området.
Å-beskyttelseslinje
Hanstedå er registeret med en å-beskyttelseslinje på 150 meter fra vandløbet. Inden for beskyttelseslinjen må der ikke placeres bebyggelse, campingvogne og lignende, beplantes eller ændres i terrænet.
Byggefelter inden for lokalplanområdet, er ikke placeret inden for åbeskyttelseslinjen, og der sker derfor ikke ændringer af åbeskyttelseslinjen.
Åbeskyttelseslinjen rammer kun det sydlige hjørne som ikke bebygges.
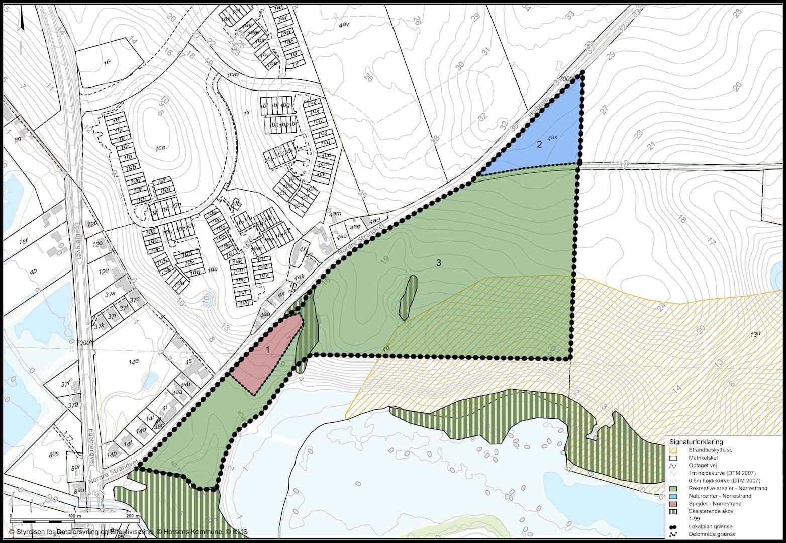
Strandbeskyttelseslinje
En del af lokalplanområdet er omfattet af strandbeskyttelseslinjen.
§ 15. Der må ikke foretages ændring i tilstanden af strandbredder eller af andre arealer, der ligger mellem strandbredden og strandbeskyttelseslinjen. Der må ikke etableres hegn, placeres campingvogne og lignende, og der må ikke foretages udstykning, matrikulering eller arealoverførsel, hvorved der fastlægges skel.
Stk. 2. Strandbeskyttelseslinjen er fastlagt ved miljøministerens bestemmelse efter de hidtil gældende regler.
Men da den del af området fastholdes i sin nuværende tilstand, vil der ikke ske en påvirkning af strandbeskyttelseslinjen.
Strandbeskyttelseslinjen rammer kun det sydlige hjørne som ikke bebygges, eller ændres på.
Trafikregulering
Der kan ikke uden samtykke fra politiet gives tilladelse til udførelse af vejanlæg m.m., Der kan have væsentlig betydning for færdselens sikkerhed og afvikling (se Færdselslovens § 100).
Museumsloven
Horsens Museum skal kontaktes inden anlægsarbejdet påbegyndes, for at give museet mulighed for at foretage arkæologiske prøvegravninger til vurdering af om der er skjulte fortidsminder, som skal udgraves. Der skal derfor afsættes tid til, at museet kan nå at foretage disse undersøgelser, inden jordarbejde påbegyndes. I henhold til Museumslovens § 27, stk. 2 og 3 Skal anlæg og byggeri standses, hvis der under jordarbejde findes grave, gravpladser, bopladser, ruiner eller andre jordfaste fortidsminder, og Horsens Museum skal underrettes om fundet.
Servitutter
Ejere og bygherrer må selv sikre sig overblik over tinglyste servitutter, der har betydning for bygge og anlægsarbejder. Man skal være opmærksom på, at ikke alle rør, kabler eller ledninger er tinglyst.
Derfor bør relevante forsyningsselskaber høres, inden jordarbejder påbegyndes. Det kan fx dreje sig om elkabler, telefon-, tele- og tv-kabler, vandledninger, fjernvarmeledninger, gasledninger og spildevandsledninger. Kommunen kan være behjælpelig med at oplyse, hvilke forsyningsselskaber, der dækker det pågældende område.
Bygherre har fået udarbejdet en servitutredegørelse, der viser at der ikke er nogen servitutter til hindre for lokalplanens gennemførelse.
Tilladelser og godkendelser af husdyrbrug
Området ligger udenfor områder til store husdyrbrug og udenfor særligt værdifulde landbrugsarealer.
Området er i dag byzone, og det vurderes ikke at husdyrbrug i nærheden vil blive begrænset i deres udvidelsesmuligheder som følge af projektet, idet området allerede er udpeget som byzone. Det nærmeste større husdyrbrug er Nordre Strandvej 47 (svineproduktion og Mink). Det er i forbindelse med miljøtilladelse beregnet lugtafgivelse fra produktionen. Der er regnet til Hansted By, som ligger ca. 700 meter fra ejendommens husdyranlæg. Den beregnede geneafstand for lugt i byzone var ca. 500 meter. Det vurderes at der er langt over de 500 meter til et spejderhus, og dermed vil husdyrbruget ikke være en begrænsning i forhold til at planlægge for et spejderhus jf. planlovens § 15b.



