Trafikplanlægning
Området vil generere mere trafik både i form af lette trafikanter og biler. Det er derfor essentielt at Nordre Strandvej tilpasses de nye behov med en sideudvidelse, der kan afvikle trafikken og sikre faciliteter for de lette trafikanter, så det er både trygt og sikkert og færdes langs og på tværs af vejen. Vejtilslutningerne skal kobles vinkelret på hinanden og Nordre Strandvej af trafiksikkerhedsmæssigt hensyn.
Stierne i området bør koble sig på stier mod Horsens by og Nørrestrand, således der skabes et kontinuerligt stisystem i området.
Trafikbelastningen vil øges i området og især i krydset mellem Nordre Strandvej og Egebjergvej vil der være en spidskapacitet. Der skal udarbejdes et trafikprojekt for området. Det er vigtigt for planlægningen at Nordre Strandvej udvides og gøres sikker for lette trafikanter. Der bør desuden reserveres areal til en sideudvidelse af Nordre Strandvej, således den er gearet til at håndtere den nye trafik. Herunder bør særligt forhold for lette trafikanter tænkes ind. Dette både langs strækningen og krydsningsmuligheder på tværs.
Vandområde- & Natura 2000 planer
Lov om vandplanlægning
Jævnfør lov om vandplanlægning, fastlægger miljø- og fødevareministeren miljømål for
vandområdedistrikternes enkelte overfladevandområder og grundvandsforekomster gennem vandområdeplaner. For alle vandforekomster er miljømålet ’god tilstand’ og for kunstige og stærkt
modificerede overfladevandområder er miljømålet et godt økologisk potentiale og en god kemisk tilstand.
Samtidig skal forringelse af tilstanden af alle overfladevandområder og af alle grundvandsforekomster forebygges, og balancen mellem indvinding og grundvandsdannelse sikres.
Der er ikke noget i lokalplanens indhold, som er til hinder for, at vandområdeplanens miljømål for grundvandsforekomster og overfladevandsområder kan opnås.
Internationale naturbeskyttelsesområder samt beskyttelse af bilag IV-arter
Der gælder særlige krav til redegørelsen til planforslag, som enten i sig selv eller i forbindelse med andre planer kan påvirke et internationalt naturbeskyttelsesområde væsentligt, jf. Bekendtgørelse om administration af planloven i forbindelse med internationale naturbeskyttelsesområder samt beskyttelse af visse arter, § 3.
Her skal der, under hensyn til bevaringsmålsætningen for området, indgå en vurdering af forslagets virkninger på det internationale naturbeskyttelsesområde.
Hvis vurderingen viser, at planen vil skade det internationale naturbeskyttelsesområdes integritet, kan planen ikke gennemføres, jf. Bekendtgørelse om administration af planloven i forbindelse med internationale naturbeskyttelsesområder samt beskyttelse af visse arter, § 3, stk. 2.
Det skal også fremgå af lokalplanforslaget, om det kan indebære påvirkning af visse dyrearter, såvel i som uden for de internationale naturbeskyttelsesområder.
Planer kan ikke vedtages, hvis de kan beskadige eller ødelægge yngle- eller rasteområder for arter der er optaget i habitatdirektivets bilag IV, jf. ovenstående bekendtgørelses § 7, stk. 2.
Natura 2000
Lokalplansområdet ligger ca. 6,1 km fra nærmeste Natura 2000 område, som er Natura 2000 område nr. 236 (Habitatområde H236, Bygholm Ådal).
Udpegningsgrundlaget for området fremgår af Miljøstyrelsens hjemmeside:
https://mst.dk/natur-vand/natur/natura-2000/natura-2000-omraaderne/udpegningsgrundlag/
Lokalplansområdet ligger i byzone. Alene på baggrund af den store afstand til det internationale naturbeskyttelsesområde og projektets beskedne omfang er det Horsens Kommunes vurdering, at det kan udelukkes, at projektet kan skade arter eller naturtyper, som udgør udpegningsgrundlaget for Natura 2000-området. Der er vedtaget en Natura 2000-plan for det internationale naturbeskyttelsesområde og projektet vurderes at være foreneligt med planens bevaringsmålsætninger.
Bilag IV-arter
En række arter af planter og dyr, de såkaldte bilag IV-arter, er omfattet af en særlig streng beskyttelse i alle EU-medlemsstater herunder Danmark. Det gælder for dyrearterne, at der er et generelt forbud mod at beskadige eller ødelægge yngle- og rasteområder i deres naturlige udbredelsesområde, mens der for plantearterne er forbud mod at ødelægge dem. Forbuddet gælder uanset om disse dyr og planter findes indenfor eller udenfor beskyttede naturområder.
Horsens Kommune har kendskab til, at der omkring lokalplansområdet lever følgende bilag IV arter; odder, stor vandsalamander, arter af flagermus, grøn mosaikguldsmed og strandtudse
Lokalplansområdet er tidligere landbrugsjord. Lokalplansområdet vurderes derfor ikke at have nogen værdi som yngle- eller rasteområde for nogen af bilag IV-arterne.
Samlet vurdering vedr. udpegningsgrundlag og bilag IV-arter
Horsens Kommune vurderer således samlet, at projektet kan realiseres uden at:
- skade arter eller naturtyper som indgår i udpegningsgrundlaget for Natura 2000-områder
- indskrænke eller forringe egnede yngle- eller rastesteder for bilag IV-arter i området
Grundvand
Lokalplanområdet ligger indenfor afgrænsningen af områder med drikkevandsinteresser.
Anvendelsen til et spejderhus vurderes uproblematisk i relation til grundvandsbeskyttelse, blandt andet fordi anvendelsen af området udlægger store rekreative arealer hvor der ikke bebygges.
Spildevandsplan 2012 - 2015
I forbindelse med byggemodning af lokalplanområdet skal der etableres et system, der kan transportere, forsinke, nedsive og fordampe regnvand samt lede vand fra kraftig regn og skybrud til Nørrestrand. Regnvandsløsningen skal udnytte naturlige strømningsveje og udarbejdes ud fra en række formål, der både tilgodeser kapacitet og afledning, men også bidrager til at skabe spændende og rekreative forløb i naturen med landskabelige lavninger, render og beplantninger. Vandhåndteringen i lokalplanområdet skal følge den blå struktur i udviklingsplanen for Nørrestrand.
Området er i spildevandsplanen udlagt til separatkloakeret planopland. Kloakeringsprincippet ændres med lokalplanen til spildevandskloakeret med lokal håndtering af regnvand. De andre boliger på Nordre Strandvej er kloakeret efter dette princip. Det er et udfordrende område at skulle placere et regnvandsbassin i, da mulighederne er få, dels grundet terrænet og §3 natur.
Regnvandshåndtering skal etableres som et åbent system på overfladen.
Anlæg til regnvandshåndtering skal udformes så de naturligt indgår i de grønne arealer og kan f.eks. udføres som åbne grøfter/trug og regnbede. Langs veje og stier kan synlig regnvandshåndtering ske i grøfter, trug eller faste vandrender, f.eks. af beton.
De grønne tage gør det muligt at forsinke og fordampe en del af tagarealet.
Lokalplanområdet skal indrettes til at kunne håndtere regnvand på terræn/håndtere vand fra ekstreme regnhændelser, og dimensioneres til som minimum, at kunne håndtere en regnhændelse med en gentagelsesperiode på 5 år (T=5). På kortbilag 7, vandhåndteringsplan, fremgår det principielt, hvor vandet skal strømme inde i lokalplanområdet, hvor det skal strømme hen, og hvor nedsivningsbassiner/regnbede placeres.
I forbindelse med det igangværende byggemodningsprojekt på Nørrestrand, er Samn Forsyning ApS ved at etablere udløbsledning, overløbsbrønd og servicevej i det kommende lokalplanområde. Disse er alle vitale dele for hele Nørrestrand-udstykningen, og derfor er det vigtigt at funktionen af disse opretholdes.
Ekspropriation
Kommunalbestyrelsen kan i medfør af Planlovens § 47, stk. 1 ekspropriere fast ejendom, der tilhører private eller private rettigheder over fast ejendom, når ekspropriationen vil være af væsentlig betydning for virkeliggørelsen af en lokalplan eller byplanvedtægt for varetagelsen af almene samfundsinteresser.
Ekspropriation efter Planloven kan ske under opfyldelse af en række betingelser. Heraf kan følgende særligt fremhæves:
- Der skal foreligge en vedtaget og offentligt bekendtgjort lokalplan (eller byplanvedtægt) på det tidspunkt, hvor der træffes beslutning om ekspropriation.
- Lokalplanen skal indeholde præcise og detaljerede bestemmelser om det projekt, der ønskes gennemført.
- Ekspropriation kan kun ske inden for det område, som omfattes af lokalplanen.
- Nødvendige tilladelser og dispensationer til realisering af ekspropriationsformålet skal være meddelt på ekspropriationstidspunktet.
- Ekspropriation i planloven kan ske til offentlige formål. Ekspropriation til fordel for en privat aktør kan tillige ske, hvis ekspropriationen i øvrigt tjener almene samfundsinteresser. Der gælder i det tilfælde et skærpet nødvendighedskrav.
- Ekspropriationens formål må ikke kunne opnås ved mindre indgribende midler, for eksempel ved frivillig aftale med den berørte lodsejer. Endvidere må ekspropriationen ikke omfattet et større areal end nødvendigt.
- Der skal være et aktuelt behov for virkeliggørelse af de foranstaltninger, som lokalplanen giver de planmæssige rammer for.
- Ekspropriation skal være nødvendig og tidsmæssig aktuel, og indgrebet skal ud fra en konkret vurdering stå i et rimelig forhold til de almene samfundsinteresser, som forfølges med ekspropriationen.
Kommunalbestyrelsen skal ved ekspropriationens gennemførelse følge de processuelle regler for ekspropriation i vejlovens §§ 99-102. Dette indebærer bl.a.:
- At kommunen skal offentliggøre et tidspunkt for en åstedsforretning og indvarsle ejere m.fl. hertil med mindst 4 ugers varsel,
- At Ejere m.fl. inden for en frist på 4 uger efter åstedsforretningen kan komme med bemærkninger til den planlagte ekspropriation,
- At kommunalbestyrelsen som hovedregel først efter udløbet af 4-ugers fristen kan træffe
beslutning om ekspropriation, - At ejere m.fl. kan klage til Planklagenævnet over lovligheden af ekspropriationsbeslutningen, - At Kommunen har pligt til at sørge for, at erstatning fastsættes ved taksation, hvis ikke der kan opnås aftale om erstatning. Sagen skal i så fald indbringes til taksationsmyndigheden senest 8 uger efter ekspropriationsbeslutningen er meddelt.
TEKNISKE ANLÆG
Elforsyning
Lokalplanområdet forsynes med el efter gældende regler.
Lokalplanområdet er forsynet med kollektiv varmeforsyning.
Vandforsyning
Området vandforsynes fra Samn Forsyning.
Renovation
Det skal sikres, at der er plads til en rationel affaldssortering og opbevaring. Renovationen skal overholde Horsens Kommunes til en hver tid gældende ”Regulativ for erhvervsaffald”.
Ved bolig og erhverv:
Det skal sikres, at der er plads til en rationel affaldssortering og opbevaring.
For boligerne skal renovationen overholde Horsens Kommunes til en hver tid gældende ”Regulativ for husholdningsaffald”.
I bymæssige områder, etagehusbebyggelser mv. kan vælges nedgravede affaldsbeholdere. Inden etableringen påbegyndes skal udformningen og tilkørselsforholdene i givet fald godkendes af Horsens Kommunes afdeling for Affald og Trafik.
For erhvervet skal renovationen overholde Horsens Kommunes til en hver tid gældende ”Regulativ for erhvervsaffald”.
Nationale interesser
Lokalplanområdet ligger ikke inden for et konsekvensområde for en produktionsvirksomhed. Det vurderes derfor, at lokalplanområdet ikke åbner mulighed for anvendelser, der vil skærpe vilkårene for eksisterende produktionsvirksomheder.
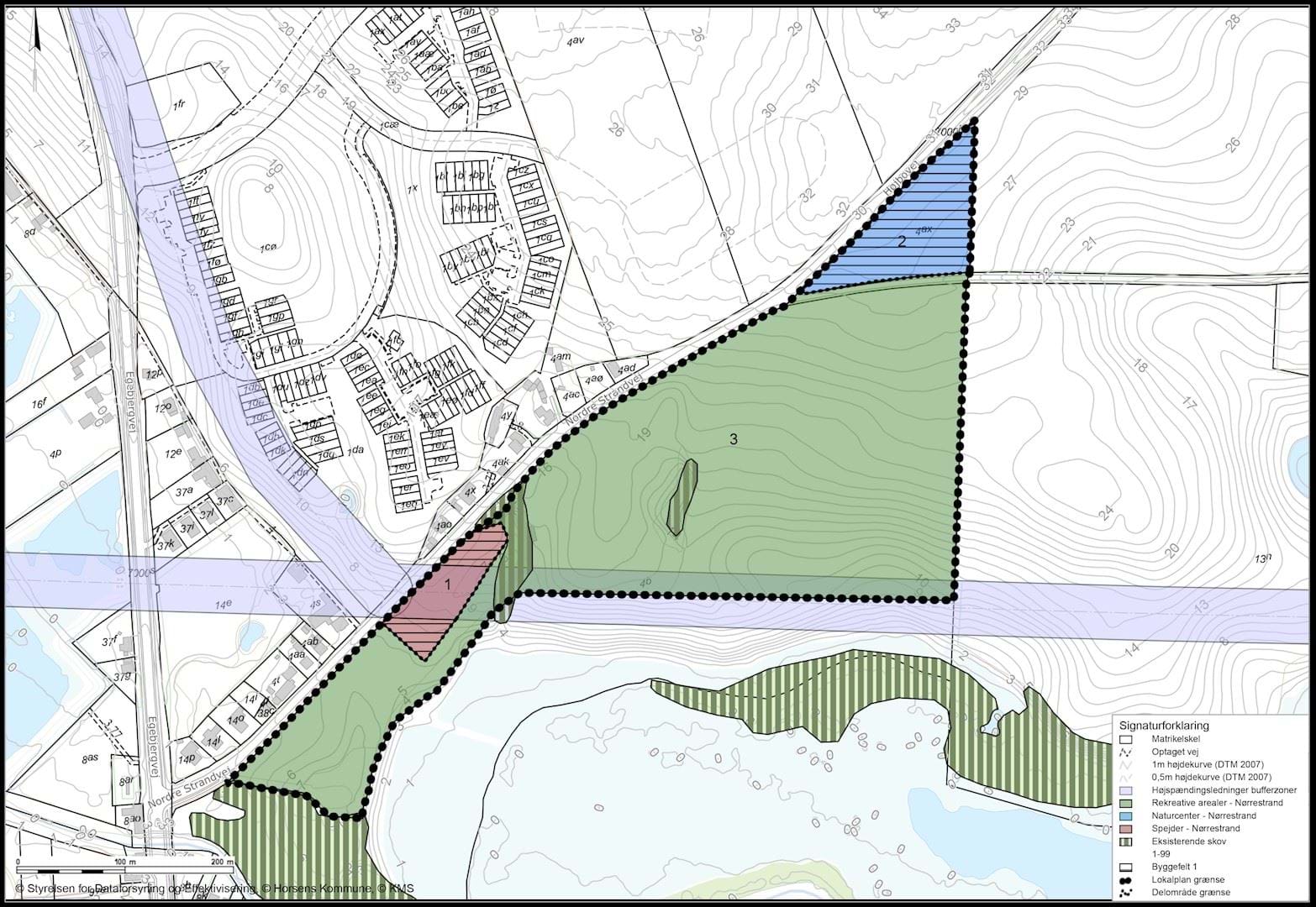
Højspændingsledninger
Lokalplanområdet gennemskæres af en højspændingsledning med en bufferzone på 50 m. For samtlige ledningsanlæg er der fastsat lodrette og vandrette respektafstande, som hverken personer, værktøj eller materiel må komme indenfor uden særlig tilladelse fra ejeren af ledningsanlægget. Respektafstandene er fastsat for at give betryggende sikkerhed ved arbejde i nærheden af elektriske ledningsanlæg.
Byggefelter er tilpasset så de ikke går ind over bufferzonen for højspændingsledninger.

