Bygninger der skal bevares
Som det fremgår af kortet nedenfor er de fleste af museets bygninger af høj eller middel bevaringsværdi. Bygningerne er opført i årene 1860-1932 og er fra en tid, hvor meget erhvervs- og offentlig byggeri blev opført i høj kvalitet, såvel arkitektonisk som byggeteknisk.
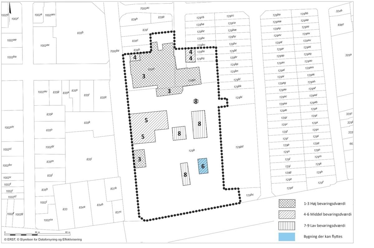
Bevaringsværdi
Bygningerne i området har en SAVE bevaringsværdi fra 3-8 (SAVE er en sammenskrivning af "Survey of Architectural Values in the Environment") Vurderingen af bevaringsværdien efter SAVE-metoden bygger på det samlede indtryk af bygningens kvalitet og tilstand. Bevaringsværdien skal opfattes som en sammenfattende karakter, der bygger på konkrete delvurderinger af den enkelte bygning. Almindeligvis vil den arkitektoniske og kulturhistoriske værdi dog veje tungest.
1-3 er høj værdi, 4-6 er middel værdi og 7-9 er lav værdi.
I forbindelse med udarbejdelsen af nærværende lokalplan er bygningernes bevaringsværdi vurderet. Bygninger på kortbilag 5 med bevaringsværdi SAVE 3-5 skal vedligeholdes med respekt for oprindelig byggeskik og bygningsdetaljer. Vedligeholdelse, renovering, ombygning, tilbygning m.v. af områdets bygninger med lav og middelbevaringsværdi (4-9) kan udføres i arkitektur, der afspejler samtidens formsprog og stil og / eller efter bestemmelserne i Lokalplan 150.
De på kortbilag 5 viste bygninger med lav bevaringsværdi SAVE 8 kan nedrives.

Kortbilag 5 - Bygningers bevaringsværdi og placering

Kortbilag 5 - Bygningers bevaringsværdi og placering

Gasvej 17-19 Industrimuseets hovedbygning fra 1906. Bygningerne skal bevares og vedligeholdes efter lokalplanens bestemmelser.

Gasvej 17-19 Industrimuseets hovedbygning fra 1906. Bygningerne skal bevares og vedligeholdes efter lokalplanens bestemmelser.

Den gamle bindingsværksbygning fra 1860. Bygningen skal bevares og vedligeholdes efter lokalplanens bestemmelser.

Den gamle bindingsværksbygning fra 1860. Bygningen skal bevares og vedligeholdes efter lokalplanens bestemmelser.

"Direktørboligen" Gasvej. Direktørboligen skal bevares og vedligeholdes efter lokalplanens bestemmelser.

"Direktørboligen" Gasvej. Direktørboligen skal bevares og vedligeholdes efter lokalplanens bestemmelser.

Gasvej 17 skal bevares og vedligeholdes efter lokalplanens bestemmelser.

Gasvej 17 skal bevares og vedligeholdes efter lokalplanens bestemmelser.



Gasvej 21 De tidligere Gasværks kontorbygninger (Norns grå bygninger). Bygningerne skal bevares og vedligeholdes efter lokalplanens bestemmelser.

Gasvej 21 De tidligere Gasværks kontorbygninger (Norns grå bygninger). Bygningerne skal bevares og vedligeholdes efter lokalplanens bestemmelser.

Træbygningen fra 1860. Den eksisterende træbygning med Nimbusmuseet kan flyttes, for at skabe en ny sammenhæng i museets udstilling. Se bestemmelser.

Træbygningen fra 1860. Den eksisterende træbygning med Nimbusmuseet kan flyttes, for at skabe en ny sammenhæng i museets udstilling. Se bestemmelser.

Villavej 49 og 51. De to tidstypiske byhuse indgår som en del af museet og er indrettet som arbejderboliger fra tidligt i århundredet. Begge bygninger skal vedligeholdes og bevares efter lokalplanes bestemmelser.

Villavej 49 og 51. De to tidstypiske byhuse indgår som en del af museet og er indrettet som arbejderboliger fra tidligt i århundredet. Begge bygninger skal vedligeholdes og bevares efter lokalplanes bestemmelser.

Villavej 51

Villavej 51
Bygninger, der skal nedrives
For at realisere projektet giver lokalplanen mulighed for nedrivning af 4 eksisterende bygninger samt flytning af en femte bygning. De 4 bygninger som ønskes nedrevet er uden bevaringsværdi og er alle fire SAVE-registreret med værdien 8. Bygninger med bevaringsværdier mellem 7 og 9 er ofte bygninger uden arkitektonisk udtryk eller uden historisk betydning. Horsens Kommune er derfor indstillet på at give tilladelse til at nedrive 4 mindre eksisterende bygninger indenfor lokalplanområdet. Det fremgår af lokalplanens kortbilag Eksisterende bygninger og bestemmelser, hvilke bygninger der kan nedrives.

Den hvide bungalow

Den hvide bungalow

Værkstedsbygningen

Værkstedsbygningen

Café Gaslight

Café Gaslight

Madpakkehuset

Madpakkehuset
Lokalplanen giver mulighed for at den hvide bungalow, værkstedsbygningen, den hvide bygning, der huser Cafe Gaslight og madpakkehuset kan rives ned.
