Kortbilag 7




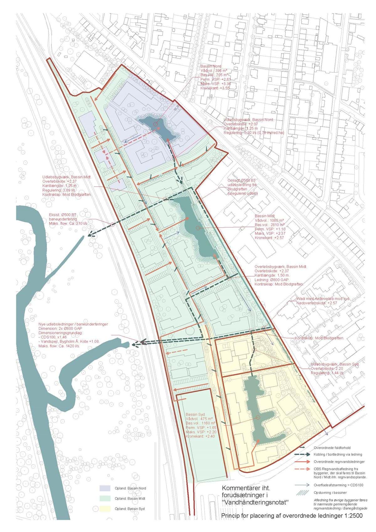
Kortbilag 7 - Snit af bassiner, Blodgrøft og Vandhåndteringsplan
01
01




Kortbilag 7 - Snit af bassiner, Blodgrøft og Vandhåndteringsplan




Kortbilag 7 - Snit af bassiner, Blodgrøft og Vandhåndteringsplan




Kortbilag 7 - Snit af bassiner, Blodgrøft og Vandhåndteringsplan