Efter Planlovens § 16, stk 3 og 4, stilles der særlige krav til redegørelsen til lokalplanforslag i kystnærhedszonen.
Her skrives redegørelsen.
For bebyggelse og anlæg i kystnærhedszonen skal der oplyses om den visuelle påvirkning af omgivelserne, og der skal ved bygningshøjder over 8,5 m anføres en begrundelse for den større højde. Herudover skal redegørelsen omfatte eventuelle andre forhold, der er væsentlige for varetagelsen af natur- og friluftsinteresser. Udover oplysninger om visuel påvirkning af omgivelserne og begrundelse for større højde end 8,5 m skal redegørelsen behandle eventuelle andre forhold, der er væsentlige for varetagelsen af natur- og friluftsmæssige interesser.
I redegørelsen til lokalplanforslag for bebyggelse og anlæg i de kystnære dele af byzonerne, der vil påvirke kysten visuelt, skal der gøres rede for påvirkningen. Hvis bebyggelsen afviger væsentligt i højde eller volumen fra den eksisterende bebyggelse i området, skal der gives en begrundelse herfor.


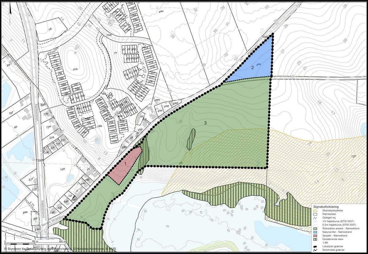
Kort over afstand til kystnærhedszonen.
