Kommuneplanen er en samlet plan for den fysiske udvikling i Horsens Kommune - både i byerne og i det åbne land. Kommuneplanen gælder som udgangspunkt i 12 år, men skal revideres hvert fjerde år.
Kommuneplanen indeholder rammer for udarbejdelsen af lokalplaner. En lokalplan skal være i overensstemmelse med kommuneplanen. Hvis der er uoverensstemmelse, kan lokalplanen kun gennemføres efter byrådets vedtagelse af et tillæg til kommuneplanen.
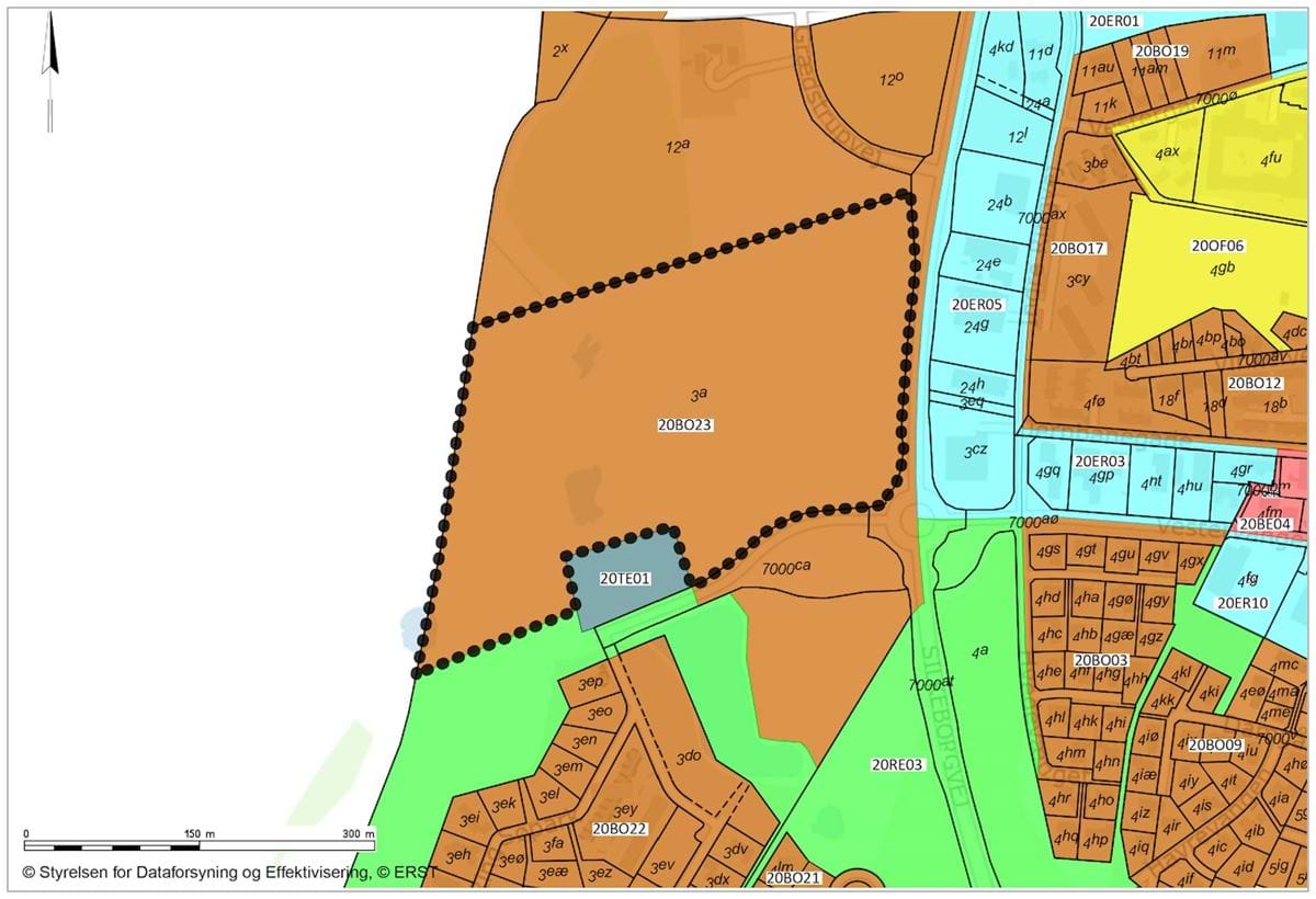
Lokalplanen ligger i rammeområde 20BO23, der giver mulighed for åben-lav og tæt-lav boligbebyggelse i op til 2 etager i maksimalt 8,5 m. højde, og med en bebyggelsesprocent på 30 for åben-lav og 40 for tæt-lav.
Der sker med denne lokalplan ikke ændringer, som ikke er i overensstemmelse med Horsens Kommuneplans hovedstruktur og retningslinjer.

Vedtagne kommunerammer

Vedtagne kommunerammer
Hovedstruktur
Det vurderes, at lokalplanlægningen er i overensstemmelse med hovedstrukturen.
Retningslinjer
Natur og landskab
Indenfor lokalplanområdet er der registreret 2 områder med naturbeskyttelsesinteresser, som kan ses på nedenstående kort.
Disse arealer har en bufferzone ift. bebyggelse på 25 meter, og for at sikre dette kommer disse § 3 områder til at ligge indenfor delområde 3 jf. kortbilag 3, som skal friholdes for bebyggelse og i stedet anvendes til et grønt fællesareal jf. § 3.4.

Naturbeskyttelsesområder

Naturbeskyttelsesområder
I forbindelse med udarbejdelsen af denne lokalplan er der blevet foretaget en undersøgelse af Horsens Kommune Teknik og Miljø ift. mulige naturbeskyttelsesinteresser, som resulterede i, at et nyt område indenfor lokalplanområdet blev kategoriseret som § 3 naturbeskyttet område, foruden de to områder der allerede er registreret i dag, se nedenstående billede.
Disse arealer har en bufferzone ift. bebyggelse på 25 meter, og for at sikre dette kommer de tre § 3 områder til at ligge indenfor delområde 3 jf. kortbilag 3, som skal friholdes for bebyggelse og i stedet anvendes til et grønt fællesareal jf. § 3.4.

§ 3 - Beskyttet naturtyper

§ 3 - Beskyttet naturtyper
Kulturhistorie
En stor del af lokalplanområdet er omfattet af fortidsmindeareal – hus med stald fra oldtiden.
I forbindelse med anlægsarbejde skal retningslinjerne overholdes, så fortidsminder og kulturarvsarealerne beskyttes mod ødelæggende indgreb. Forundersøgelser forud for byggemodning og nybyggeri anbefales generelt, jf. museumsloven.
Størsteparten af de fysiske spor fra vore fortidsminder er uregistrerede og dermed p.t. usynlige. De består af gravpladser, bopladser, offerfund, våbenfund og ressourceområder. På steder hvor der er potentiale for at støde på sådanne anlæg, bør dybdepløjning, pilotering, grubning og råstofindvinding derfor undgås. De skjulte, uregistrerede fortidsminder bør således beskyttes mod destruktion.
Museumsloven er gældende for hele lokalplanområdet. Gøres der under jordarbejde fund af historisk karakter, skal den del af arbejdet, der berører fundet, straks indstilles, og Horsens Museum underrettes, jf. museumsloven § 27, stk. 2.

Fortidsminde arealer

Fortidsminde arealer
Klima og miljø
Den nordvestlige del af lokalplanområdet ligger inden for områder med særlige drikkevandsinteresser (Brædstrup OSD). De øverste primære grundvandsmagasiner i området, er i forbindelse med den statslige grundvandskortlægning, vurderet som nitratfølsomme, hvorfor de er sårbare overfor forurening.
Horsens Kommune har netop udarbejdet et forslag til indsatsplan for beskyttelse af grundvandsmagasinerne indenfor Brædstrup OSD. Indsatsplanen er pt. i offentlig høring frem til den 8.juni 2021.
I henhold til indsatsplanens retningslinjer, skal alle ønsker om byudvikling indenfor Brædstrup OSD’et og indenfor indvindingsoplandene til vandværkerne som er omfattet af Brædstrup Indsatsplan, vurderes indenfor retningslinjerne i kommuneplanen. Det betyder, at det ved lokalplanlægningen skal præciseres, hvilke tekniske tiltag der skal bidrage til at sikre beskyttelsen af grundvandet.
Jf. § 1.6 har denne lokalplan bl.a. til formål at sikre, at anvendelsen af lokalplanens område ikke forurener områdets grundvandsressourcer. Ligeledes må der af samme årsag ikke opstilles eller nedgraves olietanke eller lign. til fyringsolie o.lign. jf. § 8.5. Yderligere må der ikke etableres tage af hverken, zink, kobber og andre metaller, da det ikke ønskes at tungmetaller herfra ledes til spildevandssystemet eller ud i vandmiljøet og grundvandet jf. §9.1.

Drikkevandsinteresser

Drikkevandsinteresser
Størstedelen af lokalplanområdet ligger indenfor indvindingsoplandet til Brædstrup Vandværk samt indenfor det område, hvor grundvandsdannelsen til Brædstrup Vandværks grundvandsmagasin foregår. Afstanden til Brædstrup Vandværks boringer er ca. 2,7 km, og lokalplanområdet ligger udenfor de udpegede boringsnære beskyttelsesområder (BNBO).
De øverste primære grundvandsmagasiner i området, er i forbindelse med den statslige grundvandskortlægning vurderet som nitratfølsomme, hvorfor de er sårbare overfor forurening og udpeget som indsatsområder.
For at beskytte indvindingsoplandet og grundvandet har denne lokalplan bl.a. til formål at sikre, at anvendelsen af lokalplanens område ikke forurener områdets grundvandsressourcer jf. § 1.6. Ligeledes må der af samme årsag ikke opstilles eller nedgraves olietanke eller lign. til fyringsolie o.lign. jf. § 8.5. Yderligere må der ikke etableres tage af hverken, zink, kobber og andre metaller, da det ikke ønskes at tungmetaller herfra ledes til spildevandssystemet eller ud i vandmiljøet og grundvandet jf. §9.1.

Indvindingsoplande til vandværker og nitratfølsomme indvindingsområder

Indvindingsoplande til vandværker og nitratfølsomme indvindingsområder
Indsatsplaner for grundvand
I forbindelse med at størstedelen af lokalplanområdet ligger indenfor udarbejdelse af forslag til Brædstrup Indsatsplan for grundvand, har Horsens Kommune foretaget en konkret vurdering af sårbarheden af de grundvandsmagasiner som Brædstrup Vandværk indvinder fra.
Brædstrup Vandværk indvinder ikke fra det øverste primære grundvandsmagasin, men fra to underliggende grundvandsmagasiner. Det er kommunens vurdering, at den statslige vurdering af det øverste grundvandsmagasins sårbarhed også repræsenterer sårbarheden af det ene af vandværkets grundvandsmagasiner, idet lerdæklaget mellem det øvre primære grundvandsmagasin og vandværkets grundvandsmagasin har en begrænset tykkelse. På den baggrund skal der i lokalplanlægning indarbejdes bestemmelser, som kan bidrage til beskyttelsen af grundvandet.
For at beskytte grundvandet har denne lokalplan bl.a. til formål at sikre, at anvendelsen af lokalplanens område ikke forurener områdets grundvandsressourcer jf. § 1.6. Ligeledes må der af samme årsag ikke opstilles eller nedgraves olietanke eller lign. til fyringsolie o.lign. jf. § 8.5. Yderligere må der ikke etableres tage af hverken, zink, kobber og andre metaller, da det ikke ønskes at tungmetaller herfra ledes til spildevandssystemet eller ud i vandmiljøet og grundvandet jf. §9.1.

Indsatsplaner for grundvand

Indsatsplaner for grundvand
Indenfor lokalplanområdet er der udover de tre § 3 naturbeskyttet vandhuller/søer nogle mindre udpegninger med oversvømmelsesrisiko. Nedenstående kort viser yderligere de strømningslinjer der er i dag i forbindelse med ekstremregn.
Lokalplanen skal derfor gennem sine bestemmelser sikre, at der tages hensyn til disse områder. Der kan derfor ikke etableres bebyggelse, som afskærmer strømningslinjerne, dog kan tekniske anlæg som veje indrettes til at lede ekstremregn jf. § 8.6.

Strømningslinjer og arealer med risiko for oversvømmelse

Strømningslinjer og arealer med risiko for oversvømmelse
Den østlige del af lokalplanområdet ligger i dag indenfor konsekvensområdet for trafikstøj fra Silkeborgvej.

Støjbelastede arealer

Støjbelastede arealer
I forbindelse med denne lokalplan, er der blevet udarbejdet en miljørapport, som bl.a. redegør for de faktuelle støjforhold i området, og hvilke afbødende foranstaltninger der skal tages i spil, for at sikre at størstedelen af lokalplanområdet overholder Miljøstyrelsens grænseværdier for støj.
Miljørapporten kom til den konklusion, at en stor del af lokalplanområdet ud mod Silkeborgvej er påvirket af en støjbelastning, som overskrider Miljøstyrelsens gældende grænseværdier for støj.
Det er derfor nødvendigt at anlægge en støjvold på minimim 5 meters højde jf. § 8.11 langs Silkeborgvej samt et kort strækning langs Ring Søpark, hvis man ønsker at placere byggegrunde indenfor de arealer, hvor støjpåvirkningen er højere end det tilladte jf. Vejledning fra Miljøstyrelsen nr. 4/2007.
Dette er yderligere beskrevet i afsnittet Miljørapport.
Natur og Landskab
Denne lokalplan ligger indenfor et større geologisk rammeområde, nærmere betegnet Det Midtjyske Søhøjland. Da lokalplanområdet ligger i direkte forbindelse til det åbne land, er det derfor vigtigt, at man forholder sig til hvordan man tilgodeser og bevarer karakteren af det eksisterende landskab.
Miljørapporten kom til den konklusion, at en støjvold er en nødvendighed for at kunne anlægge et større antal byggegrunde indenfor lokalplanområdet. Derfor stilles det som et krav i lokalplanens bestemmelser, at støjvolden skal begrønnes på begge sider med beplantning af hjemmehørende østjyske arter, som øger biodiversitet jf. § 8.11.
Denne foranstaltning gør at støjvolden tilpasses omgivelserne, og selvom man nu ikke længere vil have det lange kig mod det åbne land langs Silkeborgvej, så vil man alligevel komme forbi et grøn korridor, når man kommer kørende på denne strækning.
Dette er yderligere beskrevet i afsnittet Miljørapport.

Større geologiske rammeområde - Det Midtjyske Søhøjland

Større geologiske rammeområde - Det Midtjyske Søhøjland
