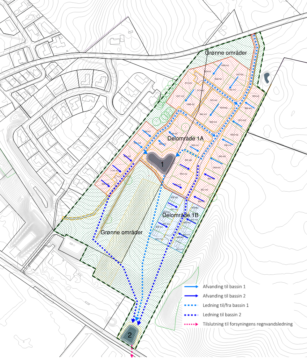
Kortbilag 6 - Vandhåndteringsplan
I forbindelse med udarbejdelsen af lokalplanen er der udarbejdet en vandhåndteringsplan for planområdet. Vandhåndteringsplanen er udarbejdet med afsæt i illustrationsplanen, (jf. kortbilag 4).
I vandhåndteringsplanen er det undersøgt, hvilke vandmængder, der skal sikres plads til ifm. hverdags- og skybrudsregn. Dermed er det sandsynliggjort, at vand op til en fremskreven 100-årshændelse (T100) kan håndteres ved realisering af projektet.
Hverdagsregn håndteres og forsinkes i et regnvandsbassin i lokalplanens sydøstlige hjørne i delområde 2, samt et regnvandsbassin i delområde 1A . Fra bassinerne ledes vandet til SAMN Forsynings regnvandsledning, som er beliggende syd for projektområdet. Regnvandsledningen har udløb i Urup Bæk.
Forudsætninger for vandhåndteringen
Recipient
Via forsyningens ledning føres vandet til recipienten Urup Bæk, som løber ud i Hansted Å. Slutrecipienten er Horsens Fjord, indre.
Spildevandstillæg
En del af delområde 1A og hele delområde 1B og delområde 2 er omfattet af kloakopland E110, der er planlagt som separatkloakeret planopland. En del af delområde 1A er beliggende udenfor opland. Der skal derfor ansøges om et tillæg til spildevandsplanen, der sikrer overensstemmelse imellem lokalplanområdet og spildevandsplanen. Lokalplanens delområder oprettes som selvstændige kloakoplande, hvor befæstelsesgraden er fastsat ud fra tillæg 22 til den gældende spildevandsplan.
Grundvand
Ifølge en screening er grundvandet beliggende imellem 1,8 og mere end 5 m u.t. Grundvandet står overordnet højest i den nordlige del af lokalplanområdet. Det vil være nødvendigt at foretage grundvandspejlinger for at fastlægge det faktiske grundvandsniveau forud for detailprojektering, byggemodning og byggeansøgning.
Drikkevandsinteresser
Lokalplanområdet er beliggende i et område med almindelige drikkevandsinteresser (OD), men uden for område med særlige drikkevandsinteresser (OSD), følsomme indvindingsområder og eksisterende indvindingsoplande til almene vandforsyningsanlæg. Området er ikke omfattet af Horsens Kommunes indsatsplaner for grundvandsbeskyttelse.
Eksisterende strømningsveje
Lokalplanområdets vandhåndtering skal kunne håndtere klimavand fra de eksisterende strømningsveje på arealet.
Nedsivning
Der er ingen forurening, særlige drikkevandsinteresser eller højtstående grundvand, som umuliggør nedsivning af overfladevand. Nedsivning formodes kun at have relevans ifm. LAR-tiltag, da hovedbassinet anlægges med tæt membran for at sikre det permanente rensevolumen. Nedsivningsforholdene skal undersøges nærmere i forbindelse med realisering.
Krav til vandhåndteringen
Fysisk udformning
| Hældning |
Indvendige skråningsanlæg på bassin skal være 1:5 eller fladere. I videst muligt omfang med varierende kanthældning, så det indpasses naturligt i terrænet. |
| Terrænregulering | <0,5 m ift. eksisterende naturlige terræn. Regulering i nødvendigt omfang ifm. etablering af regnvandsbassin. |
Arealinddeling og befæstelsesgrader
| Type | Afløbskoefficienter | |
| Åben-lav bebyggelse | 0,35 | |
| Tæt-lav bebyggelse | 0,55 |
Serviceniveau T5
| Gentagelsesperiode | T=5, dvs. stuvning til terræn tilladt 1 gang hvert 5. år |
| Sikkerhedsfaktor |
Samlet sikkerhedsfaktor = 1,33
|
| Udløbstal |
1,0 l/s/red. ha |
| Afskærende ledningskapacitet |
Bassin 1: 1,6 l/s Bassin 2: 1,0 l/s Samlet udløb til forsyningsledning: 2,6 l/s |
| Hydrologisk reduktionsfaktor | 0,9 |
| Rensevolumen | 250 m3/befæstet hektar |
Ekstremregn T100
| Gentagelsesperiode | T=100, dvs. stuvning til terræn tilladt 1 gang hvert 100. år |
| Varighed | 24 timer |
| Regndybde | 81 mm |
| Sikkerhedsfaktor |
Samlet sikkerhedsfaktor = 1,68
|
| Initialtab | 0,6 mm |
| Resulterende regndybde |
94 mm (81 mm x sikkerhedsfaktor, fratrukket initialtab og serviceniveau) |

