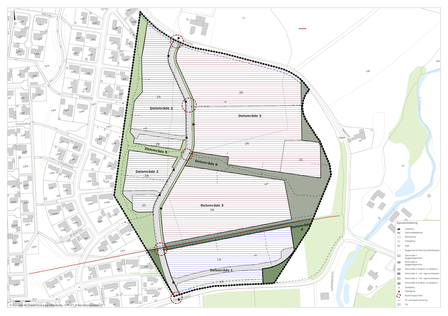
Kortbilag 3A og 3B
Lokalplanen giver udelukkende mulighed for bebyggelse indenfor de byggeretgivende delområder 1 og 2. Delområde 4 og 5 udlægges til rekreative områder.
Delområde 3 og 6 kræver ny lokalplan, men skal tage afsæt i indeværende lokalplans principper og bestemmelser, for at sikre et sammenhængende og harmonisk boligområde på sigt.


