Kommuneplanen er en samlet plan for den fysiske udvikling i Horsens Kommune - både i byerne og i det åbne land. Kommuneplanen gælder som udgangspunkt i 12 år, men skal revideres hvert fjerde år.
Kommuneplanen indeholder:
- En hovedstruktur, der fastlægger de overordnede mål for udviklingen og arealanvendelsen i kommunen,
- Retningslinjer for arealanvendelsen, og
- Rammer for lokalplanlægningen
En lokalplan skal være i overensstemmelse med kommuneplanen. Hvis der er uoverensstemmelse, kan lokalplanen kun gennemføres, hvis byrådets vedtager et tillæg til kommuneplanen, der muliggør lokalplanens indhold.
Lokalplanens indhold er i overensstemmelse med kommuneplanens hovedstruktur, retningslinjer og rammebestemmelser:
Hovedstruktur
Lokalplanområdet er ved vedtagelsen i 2023 af tematillæg for byudvikling, blevet en del af hovedstrukturen og bymønstret for Lokalcenterbyen Gedved. Planlægningen af lokalplanområdet understøtter Det Store Billede 2050 og den definerede byudviklingsstruktur i Kommuneplan 2021.
Retningslinjer
Lokalplanens bestemmelser er samlet set i overensstemmelse med de gældende rammebestemmelser. Følgende retningslinjer vil være opmærksomhedspunkter for den videre planlægning af bebyggelse og ubebyggede områder indenfor lokalplanafgrænsningen;
1. Byer og landsbyer
1.1 Byudvikling
Ved udviklingen af Gedved Øst, er det vigtigt at sikre, at byudviklingen harmonerer med det omgivende landskab. For eksempel skal byranden bearbejdes med beplantning for at sikre en grøn overgang mellem byen og landskabet.
Udviklingen tager overordnet afsæt i retningslinje 1.1.3-1.1.5 og 1.1.7.
3. Natur og landskab
Lokalplanområdet ligger indenfor følgende natur- og landskabsudpegninger;
3.5 Landskab herunder Gedved Bakkelandskab
Iht. retningslinje 3.5.1 om inddeling af Horsens Kommunes landskabsområder, danner de enkelte landskabsområder, jf. Landskabsplanen, grundlaget for den planlægning der kan ske indenfor de respektive landskabsområder. Lokalplanområdet er en del af Gedved Bakkelandskab, og skal varetage de landskabelige hensyn der udstikkes af landskabsplanen for området som helhed.
3.6 Skovrejsning herunder uønsket skovrejsning
Udviklingen af området skal sikre tilvejebringelse af retningslinje 3.6.2 De områder, der er udpeget til skov uønsket, skal i videst muligt omfang friholdes for tilplantning med skov.
3.7 Geologiske bevaringsværdier herunder Større geologiske rammeområder
Lokalplanen placerer sig indenfor udpegningen af større geologiske rammeområder. Al planlægning skal ske under hensyntagen til retningslinje 3.7.1, som har til formål at sikre det overordnede landskab, og at byggeri og anlæg placeres og udformes under hensyntagen til landskabets geologiske kvaliteter. Derudover skal sikres, at de geologiske landskabsformer, deres indbyrdes overgange og landskabelige sammenhænge ikke forringes. Derved vil områderne beholde deres værdi for den landskabsgeologiske formidling.
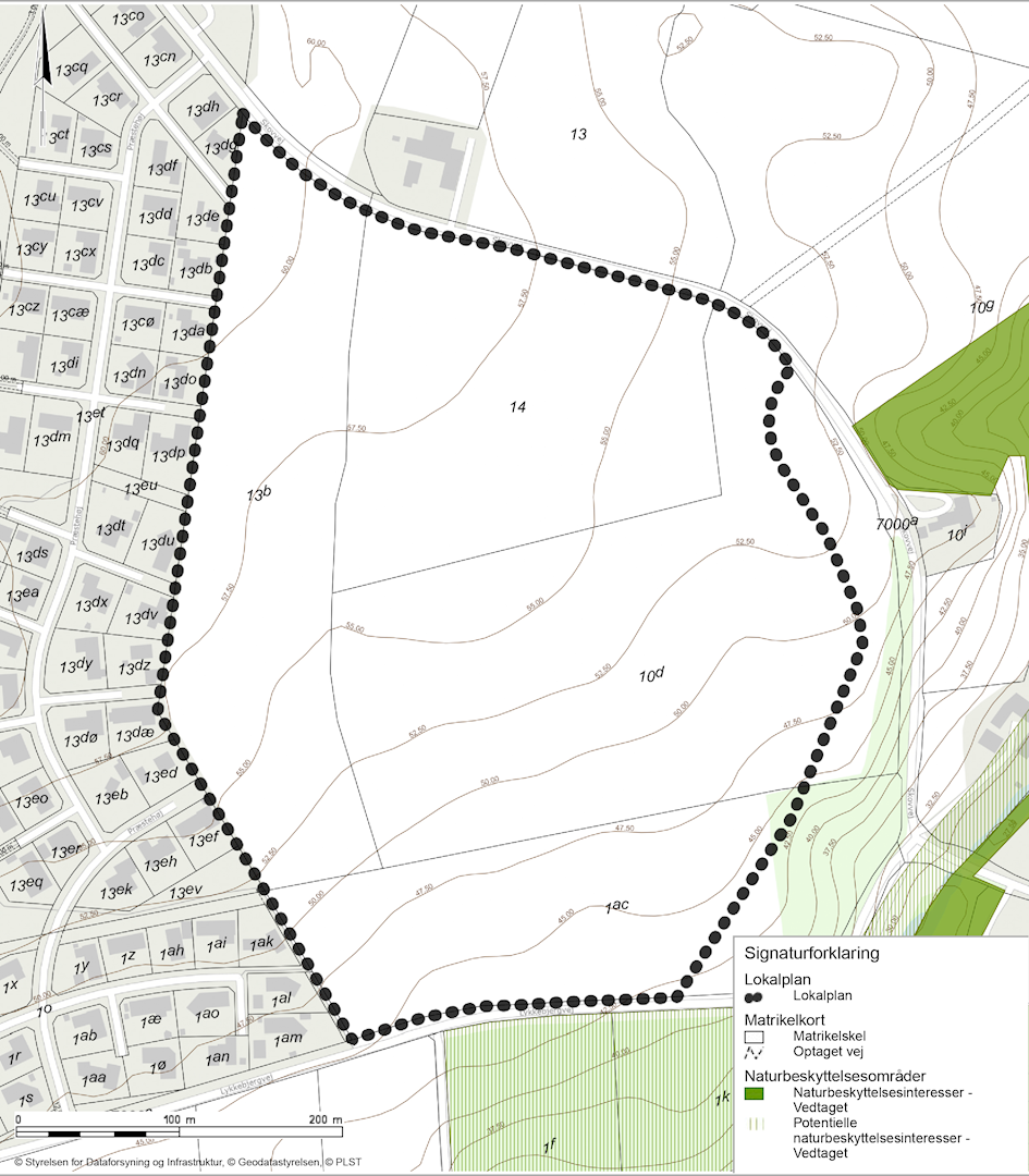
Derudover grænser lokalplanområdet op til følgende natur- og landskabsudpegninger;
- 3.1 - Naturbeskyttelse
- 3.2 - Økologiske forbindelser
- 3.3 - Grønt Danmarkskort
- 3.5 - Landskab herunder Bevaringsværdige landskaber
Der skal mellem lokalplanområdet og tilstødende udpegninger sikres en nænsom landskabelig overgang og bearbejdning, under hensyntagen til de tilstødende natur- og landskabsudpegninger, med afsæt i kommuneplanens retningslinjer for de respektive udpegninger.
4. Kulturhistorie
Lokalplanen rummer følgende kulturhistoriske udpegninger;
4.1 Kulturhistorie generelt
Det fredede dige og dens 6 m brede bevaringsudpegning, udlagt som en bevaringszone 3 m på hver side af digets midte, skal bevares og beskyttes i planlægningen. Lokalplanen skal ifm. udlægning af byggeri, terrænreguleringer og beplantning tage særligt hensyn til de kulturhistoriske interesser.
4.4 Fredede og bevaringsværdige bygninger
Lokalplanområdet rummer udpegning af et beskyttet sten- og jorddige. Der henvises til øvrig lovgivning (museumsloven) under tilladelser fra andre myndigheder ift. håndtering af diget. I øvrigt er indarbejdet specifikke bestemmelser under § 10, der har til formål at sikre diget som helhed.
7. Erhverv og Landbrug
Lokalplanområdet grænser op til en udpegning af særligt værdifulde landbrugsområder. De særligt værdifulde landbrugsområder skal i videst muligt omfang friholdes for aktiviteter, der kan hindre landbrugserhvervets udviklingsmuligheder. Retningslinjen hindrer ikke aktiviteter, som er en del af den landbrugsmæssige drift som f.eks. etablering eller pleje af skov, natur osv.
Indenfor de særligt værdifulde landbrugsområder skal der vises tilbageholdenhed med at inddrage arealer til ikke jordbrugsmæssige formål som f.eks. byudvikling og tekniske anlæg. Al bearbejdning af landskabet på kanten af og i overgangen til udpegningen skal ske under hensyntagen til retningslinjerne for 7.1 Særligt værdifulde landbrugsområder.
8. Klima og miljø
Lokalplanområdet ligger indenfor følgende klima- og miljøudpegninger;
8.1 Klimatilpasning
Lokalplanens vandhåndtering skal tage afsæt i retningslinjerne 8.1.2 - 8.1.5.
Se i øvrigt beskrivelse under vandhåndtering.
8.5 Grundvand
Inden for lokalplanområdet er der afgrænset både terrænnære, regionale og dybe grundvandsforekomster jf. den statslige vandområdeplan. Målsætningen for disse grundvandsforekomster er, at der skal være god kvalitativ og kvantitativ tilstand. Det planlagte har en neutral påvirkning på de miljømål, som gennem lov om vandplanlægning er fastlagt for grundvandsforekomster.
Der henvises i øvrigt til de generelle retningslinjer for Grundvand.
Rammer
Området er omfattet af kommuneplanramme 33BO11. Lokalplanen er i overensstemmelse med rammebestemmelserne.


Kort over vedtagne kommuneplanrammer.


















Kort over forhold til retningslinjer.
