• Formål & indhold
    • Baggrund & formål
    • Interaktivt kort
    • Beliggenhed & eksisterende forhold
    • Lokalplanens indhold
  • Bestemmelser
  • Kort & skitser
    • Lokalplanafgrænsning
    • Eksisterende forhold
    • Fremtidige forhold
    • Illustrationsplan
    • Skyggediagrammer
    • Materialer og facader
    • Vandhåndteringsplan
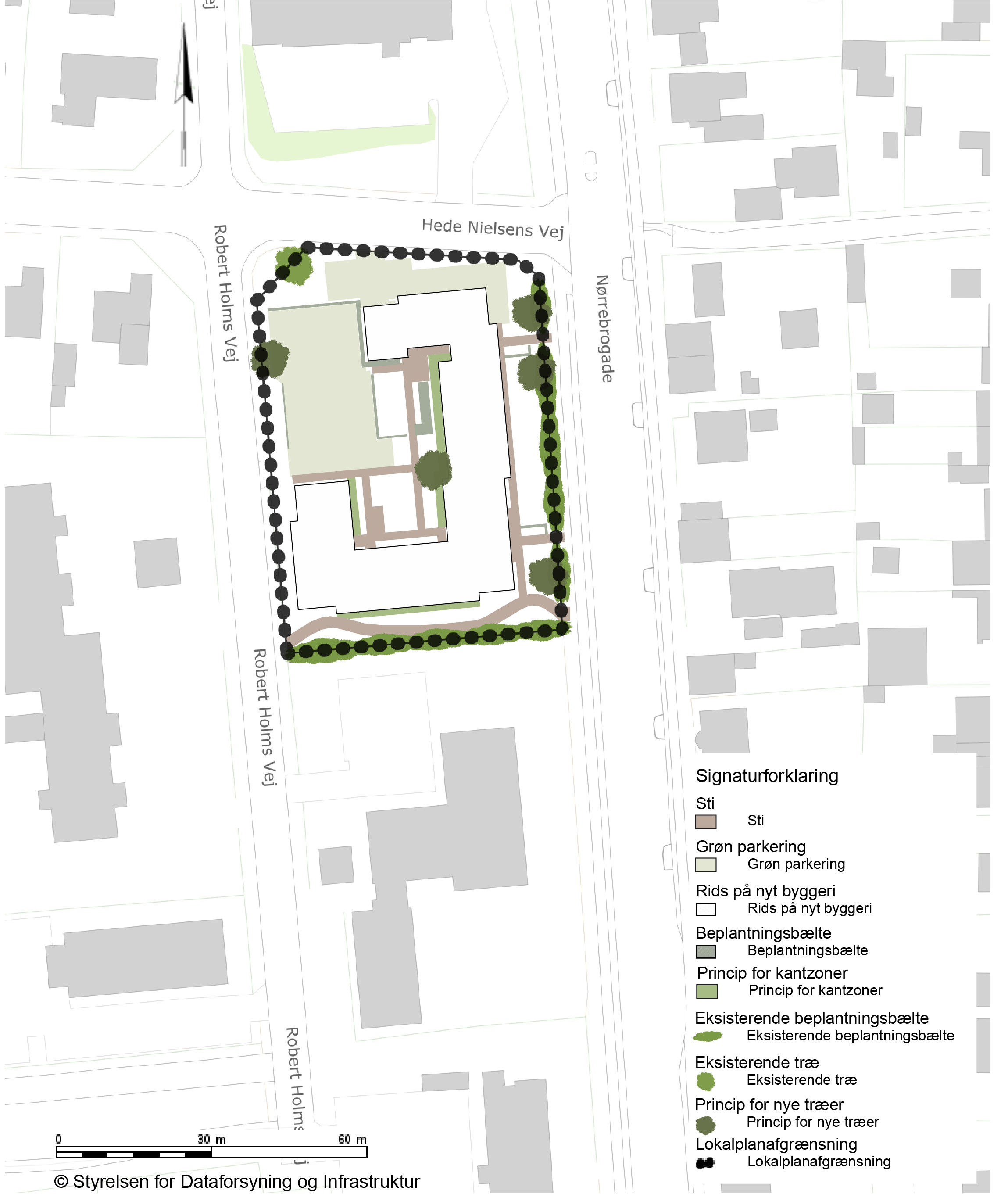
    • Beplantning
    • 3D-bymodel
  • Andre planer & love
    • Eksisterende lokalplaner
    • Kommuneplanen
    • Sektorplaner
      • Spildevandsplanen
      • Grundvand
      • Affald
      • Trafik
      • Skole- og daginstitution
      • Forsyning
    • Politikker og strategier
    • Forhold til anden planlægning
      • Vandplaner, Natura 2000 og bilag IV arter
      • Kystnærhedszone
      • Byomdannelsesområde
      • Jord
      • Støj fra trafik
      • Produktions- og risikovirksomheder
      • Anden landsplanlægning
      • Tilladelser fra andre myndigheder
  • Kp-tillæg
  • Miljøvurdering
  • Høring
    • Klagevejledning
    • Vedtagelse
    • Mindretalsudtalelser
    • Midlertidige retsvirkninger
    • Lokalplanens gennemførelse
  • Print
  • FIND LOKALPLAN
  • FORSLAG TIL LOKALPLANER
  • HVAD ER EN LOKALPLAN
  • FORUDSÆTNINGER
  • STRATEGI
  • KOMMUNEPLAN
  • LOKALPLANER
  • SEKTORPLANER
  • HELHEDSPLANER
  • VVM

413 - Boliger og erhverv, Robert Holms Vej 1, Horsens 

Kladde til vedtaget

  • PRINT
  • LÆS HØJT
  • Formål & indhold
    • Baggrund & formål

    • Interaktivt kort

    • Beliggenhed & eksisterende forhold

    • Lokalplanens indhold

  • Bestemmelser
  • Kort & skitser
    • Lokalplanafgrænsning

    • Eksisterende forhold

    • Fremtidige forhold

    • Illustrationsplan

    • Skyggediagrammer

    • Materialer og facader

    • Vandhåndteringsplan

    • Beplantning

    • 3D-bymodel

  • Andre planer & love
    • Eksisterende lokalplaner

    • Kommuneplanen

    • Sektorplaner

      • Spildevandsplanen
      • Grundvand
      • Affald
      • Trafik
      • Skole- og daginstitution
      • Forsyning
    • Politikker og strategier

    • Forhold til anden planlægning

      • Vandplaner, Natura 2000 og bilag IV arter
      • Kystnærhedszone
      • Byomdannelsesområde
      • Jord
      • Støj fra trafik
      • Produktions- og risikovirksomheder
      • Anden landsplanlægning
      • Tilladelser fra andre myndigheder
  • Kp-tillæg
  • Miljøvurdering
  • Høring
    • Klagevejledning

    • Vedtagelse

    • Mindretalsudtalelser

    • Midlertidige retsvirkninger

    • Lokalplanens gennemførelse

  • Print
  • Forside /
  • 413 Boliger og erhverv, Robert Holms Vej 1, Horsens /
  • Kort og skitser /
  • Beplantning

Log ind

LOKALPLANER

> Find lokalplan
> Lokalplaner i høring  
> Hvad er en lokalplan? 

PLANOVERSIGT

> Kommuneplan
> Lokalplaner
> Sektorplaner
> Helhedsplaner
> Cykelby

HORSENS KOMMUNE

Chr M Østergaards Vej 4
8700 Horsens 
Tlf. 76 29 29 29 
horsens.kommune@horsens.dk

CVR. 29 18 98 89 
> EAN-numre
> Øvrige kontaktinformationer

COWI PLAN

© 2019 Horsens Kommune